
Ed Sheeran has been given permission to build a burial chamber underneath a church that is currently being constructed in his garden.
The 31-year-old musician was given the go ahead to build the religious structure in the grounds of his Suffolk estate which has been dubbed 'Sheeranville'.
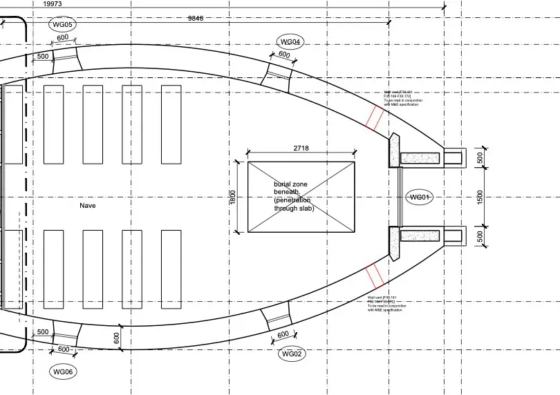
He will be building an area which is said to be 9-foot by 6-foot which will be accessed via a stone slab underneath the church.

Advert
According to reports, the plans read: "Burial zone beneath (penetration through slab)."
It's believed that the area will be big enough for two bodies which will be laid underneath the boat-shaped church.
Some people aren't too pleased about the plans though with one of Ed's neighbours believing that there are enough churches around.
Anna Woods, one of the residents, sent a letter of objection to air her views on the changes saying that celebrities like him are 'detached from reality'.

She said: "The area is well served by local churches and I feel there is no need for a well-known person to create his own island of calm when lovely places of worship abound in the area.
"I also note there will be a burial chamber in the building. Are celebrities now so detached from reality that their every living breath, and now even the act of dying, be apart from the rest of us?”
Sheeran gained approval in 2019 to build the 'private place of retreat for contemplation and prayer' at his home in the county of Suffolk, where he grew up.

Guests from around the world visit Sheeran’s estate, according to the 2019 planning application for a chapel.
It explained: "Many of these people are from many countries, faiths and customs, including for example the USA, Ireland, Ghana, Nigeria, Asia and Australia.
“Thus, the applicant seeks to provide a space in which, he, his family and these different people can retreat for contemplation, prayer and relaxation, to meet celebrate and meditate in peace and safety from disturbance, when they visit.”
The chapel is to be lined with flint, with a spiral stair tower, a lead roof and stained as well as clear glass windows.
Topics: Ed Sheeran