
A couple has been left thousands of pounds in debt after becoming embroiled in a 10-year-old legal battle with their neighbours over ‘six inches’ of land between their properties.
Philip New, 52, and his wife Denise New, 47, have remortgaged their Essex home to cover the court costs incurred due to the boundary dispute.
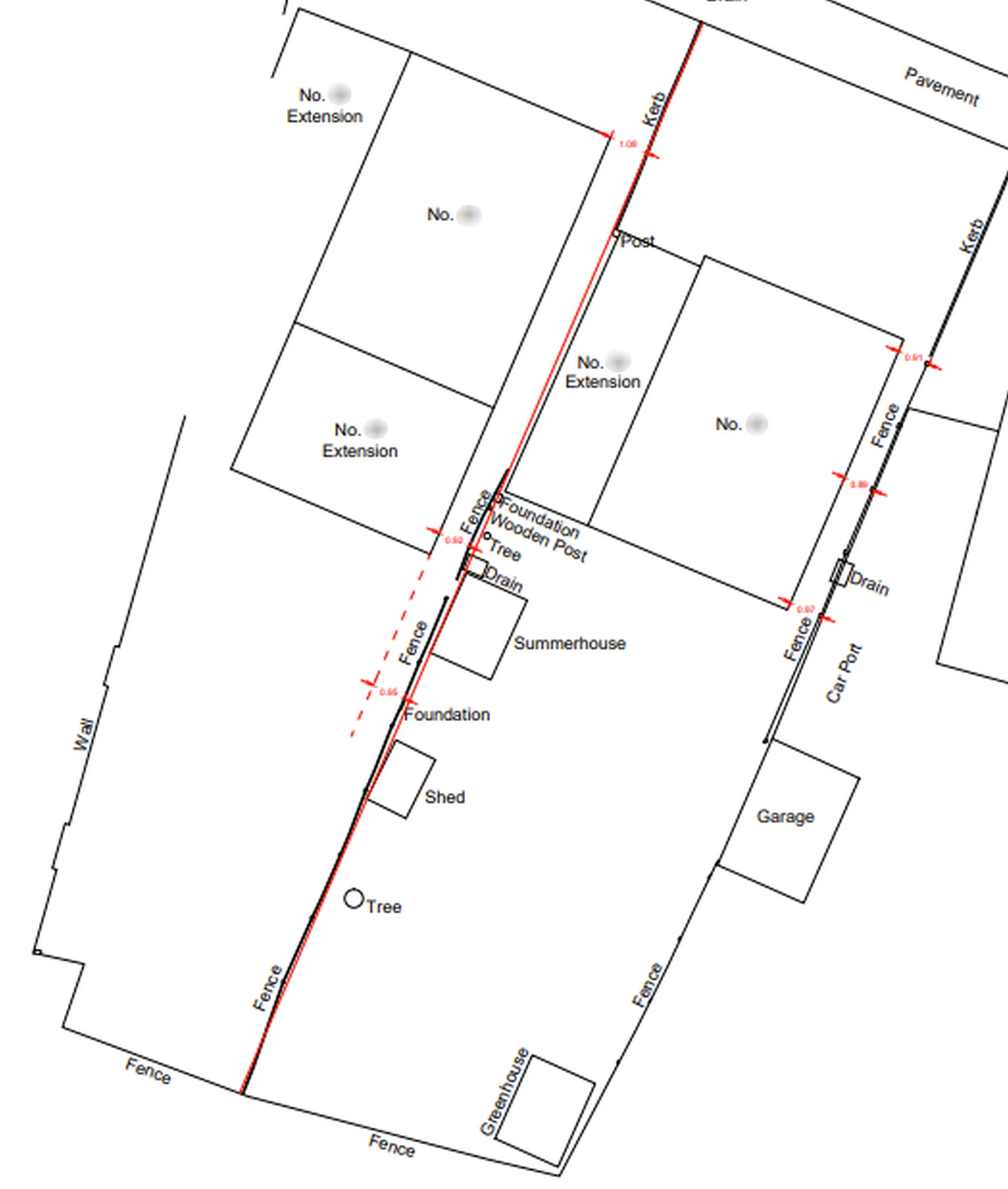
The conflict kicked off in 2012, when the neighbours argued that the News’ fence was in the wrong place and should be moved further back into the couple’s garden, meaning the News are technically ‘trespassing’ on their land.

Advert
The News, who have lived in the property for 16-years, say the fence has always been in the same spot.
They claim they replaced the fence panels in 2010, after they became rotted, but that they kept the original concrete posts that had been in place for around 50 years - but the neighbours disagreed and say they moved them.
Phil says the surveyor did an ‘extremely poor’ job of determining the boundary line, meaning it goes directly over a drain system, but says the neighbours insisted on it anyway.
After the lengthy legal battle, the News have conceded - and say they have even forfeited more land than necessary by putting up a second fence and seeking an out-of-court settlement, but claims the neighbours won’t let the issue drop.

Phil said: "I wish I knew why they're doing this. The amount of land they've been after at the absolute most has been roughly six inches, it's miniscule.
"We got our own surveyor to mark the line out and it turned out that at the end of the garden they were on our land based on the new boundary line.
"We worked it out and on the full length of our property they would gain less than a square metre total and that's spread along the fence line - there's nowhere they could put a foot and they'd be putting a foot on our land in some places.
"We've had to re-mortgage because of the legal fees. We got suckered in because we thought we would win the case and then we didn't and we didn't have any choice but to appeal.
"So far it's probably cost us in the region of about £25,000 to £30,000 and that's without the final cost - if it goes really wrong it could be another £30,000 to £40,000.
"It's driven us nuts and taken over our lives. We don't seem to talk about anything except this. It's a nightmare, it doesn't go away, we live and breathe it.
"They're just selfish people who've gone through the whole process with nothing to lose, to gain something they've obviously never had on the property."

The neighbours, who did not want to be named, accused the couple of being ‘very bad losers’ and say the News need to accept the judgement made in court.
They said: "It's been through a very senior county court judge who awarded the case to us, they then took it to the high court where a high court judge ruled that the county judge was right and then it's been to one of the highest judges in this country who also threw it out.
"So you're telling me three senior judges have got it wrong but Mr New has got it right? I don't think so.
"This guy is facing a serious hefty bill, he should be dealing with the fence issue.
"He's lost the case and he won't give us our land back. He's not entitled to put a fence up. We want our fence put back. Six inches is a lot of land and equally he has no right to take it."
Topics: UK News